Stewart Estate Agents

Villawood Meadows, Villawood Road, Dromore, BT25 1NH

Site (with FPP) For Sale

Offers around £225,000

Print additional images & map (disable to save ink)

Photo 1 of Villawood Meadows, Villawood Road, Dromore

Telephone:

028 9261 2121

View Online:

www.stewartestateagents.com/856991

Key Information

Address Villawood Meadows, Villawood Road, Dromore, BT25 1NH
Price Offers around £225,000
Land type Site (with FPP)
Size 6 acres
Planning Full Planning Permission
Status For sale

Features

  • Stunning two acre building site with an additional four acres of agricultural land
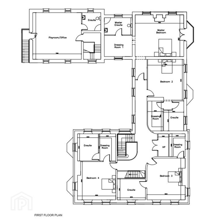
  • Full planning permission for a stunning 4000 Sq .Ft. Detached country home with double garage block
  • Current planning reference Q/2011/0183/F
  • This site benefits from a CLUD allowing the purchaser the freedom to re design the current property, re position within the boundaries of the site or completely start again (subject to planning)
  • Villawood Meadows is a well maintained, tarmac avenue from the Villawood Road with entrance pillars and mature planting
  • The agricultural lands are well fenced, bordered by mature trees on the southern boundary and the lane to the north with field gate access

Additional Information

Very rarely does an opportunity arise to purchase a secluded building site with additional lands, yet still having the convenience of major road links within close proximity. Tucked at the end of a quiet lane of detached homes just off the Villawood Road outside Dromore, this stunning site offers the purchaser the wonderful opportunity to design, build and live within a stunning setting yet still within good reach of Dromore, Banbridge and the A1 to Sprucefield and indeed Dublin.


With full planning permission for a substantial detached home this site allows the purchaser to begin building their new home immediately. Alternatively, having the benefit of a Certificate of Lawful Use and Development (CLUD) the purchaser can remodel or completely redesign and build their dream home to their own specifications!


 

  • Stewart Estate Agents

    Stewart Estate Agents

    028 9261 2121

Photo Gallery

Photo 1 of Villawood Meadows, Villawood Road, Dromore Photo 2 of Villawood Meadows, Villawood Road, Dromore Photo 3 of Villawood Meadows, Villawood Road, Dromore Photo 4 of Villawood Meadows, Villawood Road, Dromore Photo 5 of Villawood Meadows, Villawood Road, Dromore Photo 6 of Villawood Meadows, Villawood Road, Dromore Photo 7 of Villawood Meadows, Villawood Road, Dromore Photo 8 of Villawood Meadows, Villawood Road, Dromore Photo 9 of Villawood Meadows, Villawood Road, Dromore Photo 10 of Villawood Meadows, Villawood Road, Dromore Photo 11 of Villawood Meadows, Villawood Road, Dromore Photo 12 of Villawood Meadows, Villawood Road, Dromore Photo 13 of Villawood Meadows, Villawood Road, Dromore Photo 14 of Villawood Meadows, Villawood Road, Dromore Photo 15 of Villawood Meadows, Villawood Road, Dromore

Location

Visit www.stewartestateagents.com for further details.