Stewart Estate Agents

4 Taughrane Lodge Dollingstown, BT66 7UH

4 Bed Detached House For Sale

SOLD

Print additional images & map (disable to save ink)

Photo 1 of 4 Taughrane Lodge, Dollingstown

Telephone:

028 9261 2121

View Online:

www.stewartestateagents.com/1007338

Key Information

Address 4 Taughrane Lodge Dollingstown, BT66 7UH
Style Detached House
Bedrooms 4
Receptions 2
Bathrooms 2
Heating Oil
EPC Rating D66/C72
Status Sold

Additional Information

 This very desirable detached dwelling was built by the renowned builder Henry Price who has finished the property to an exceptional standard and quality of finish, including  concreted first floor bison floors, attractive internal joinery to include an oak spindles staircase with oak newel posts and integrated LED lighting, oak panelled doors, brick paved pathways, driveway and patio areas, all complimented by a beautiful interior presentation which will immediately appeal to discerning purchasers seeking a quality four bedroom home in a highly respected residential location. Taughrane Lodge is convenient to local amenities including bus services and road networks to other provincial towns and cities. Viewing a must!


 


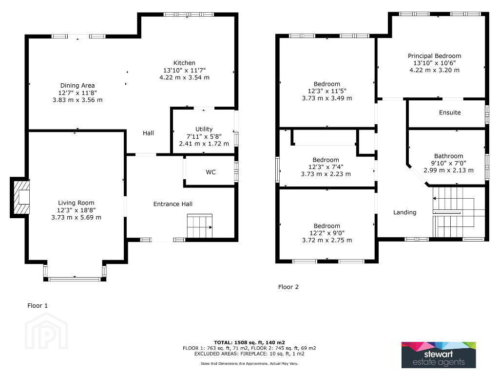
An exceptional detached dwelling extending to approximately 1,700 sq.ft with matching detached garage


Four spacious bedrooms, master bedroom with ensuite shower room


Bright and spacious entrance hallway with a feature spindled oak staircase to the first floor accommodation. Inset LED lighting. Feature landing window


Downstairs cloak room with WC and wash hand basin


Living room with a feature bay window and a stunning fireplace with an antique style inset with an open fire


Open plan live-in style kitchen with dining area including a truly bespoke fitted hand painted kitchen with ample high and low level cabinetry with built in appliances including a built in oven, inset hob and extractor fan, built in fridge/freezer and built in dishwasher. Feature granite work surfaces and inset sink unit. Attractive door leading to the rear garden


Separate utility room with fitted high and low level units with space for an automatic washing machine and space for a tumble dryer. Feature granite work surfaces and inset sink unit


Bathroom on the first floor with a modern style suite including a bath, WC and wash hand basin and a separate shower cubicle


Oil fired central heating


PVC double glazed windows and external doors


Brick paved driveway and parking areas, pathways and patio area to the rear. Neat lawns front and rear


Concrete Bison floors to the first floor accommodation


Oak panelled interior doors


 


 


 


Directions

Off Belfast Road, Dollingstown.

  • Stewart Estate Agents

    Stewart Estate Agents

    028 9261 2121

Photo Gallery

Photo 1 of 4 Taughrane Lodge, Dollingstown Photo 2 of 4 Taughrane Lodge, Dollingstown Photo 3 of 4 Taughrane Lodge, Dollingstown Photo 4 of 4 Taughrane Lodge, Dollingstown Photo 5 of 4 Taughrane Lodge, Dollingstown Photo 6 of 4 Taughrane Lodge, Dollingstown Photo 7 of 4 Taughrane Lodge, Dollingstown Photo 8 of 4 Taughrane Lodge, Dollingstown Photo 9 of 4 Taughrane Lodge, Dollingstown Photo 10 of 4 Taughrane Lodge, Dollingstown Photo 11 of 4 Taughrane Lodge, Dollingstown Photo 12 of 4 Taughrane Lodge, Dollingstown Photo 13 of 4 Taughrane Lodge, Dollingstown Photo 14 of 4 Taughrane Lodge, Dollingstown Photo 15 of 4 Taughrane Lodge, Dollingstown Photo 16 of 4 Taughrane Lodge, Dollingstown Photo 17 of 4 Taughrane Lodge, Dollingstown Photo 18 of 4 Taughrane Lodge, Dollingstown Photo 19 of 4 Taughrane Lodge, Dollingstown Photo 20 of 4 Taughrane Lodge, Dollingstown Photo 21 of 4 Taughrane Lodge, Dollingstown Photo 22 of 4 Taughrane Lodge, Dollingstown Photo 23 of 4 Taughrane Lodge, Dollingstown Photo 24 of 4 Taughrane Lodge, Dollingstown Photo 25 of 4 Taughrane Lodge, Dollingstown Photo 26 of 4 Taughrane Lodge, Dollingstown Photo 27 of 4 Taughrane Lodge, Dollingstown Photo 28 of 4 Taughrane Lodge, Dollingstown Photo 29 of 4 Taughrane Lodge, Dollingstown Photo 30 of 4 Taughrane Lodge, Dollingstown Photo 31 of 4 Taughrane Lodge, Dollingstown Photo 32 of 4 Taughrane Lodge, Dollingstown Floorplan 1 of 4 Taughrane Lodge, Dollingstown

Location

Visit www.stewartestateagents.com for further details.